exklusive vier Zimmer Wohnung zu vermieten
Lage/ Grundriss

Die Lage der Wohnung ist in Solingen Aufderhöhe, Neu - Löhdorf 22 a.

Es ist eine absolut ruhige, aber dennoch zentrale Wohnlage in einer kleinen Hofschaft mit zehn Parteien.

Busanbindung, Einkaufsmöglichkeiten, Tankstelle sowie Sparkasse sind  mit kurzen Fusswegen zu erreichen.

Auf dem unteren Kartenausschnitt können Sie sehen, wo sich die Wohnung genau befindet.

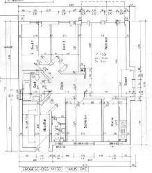
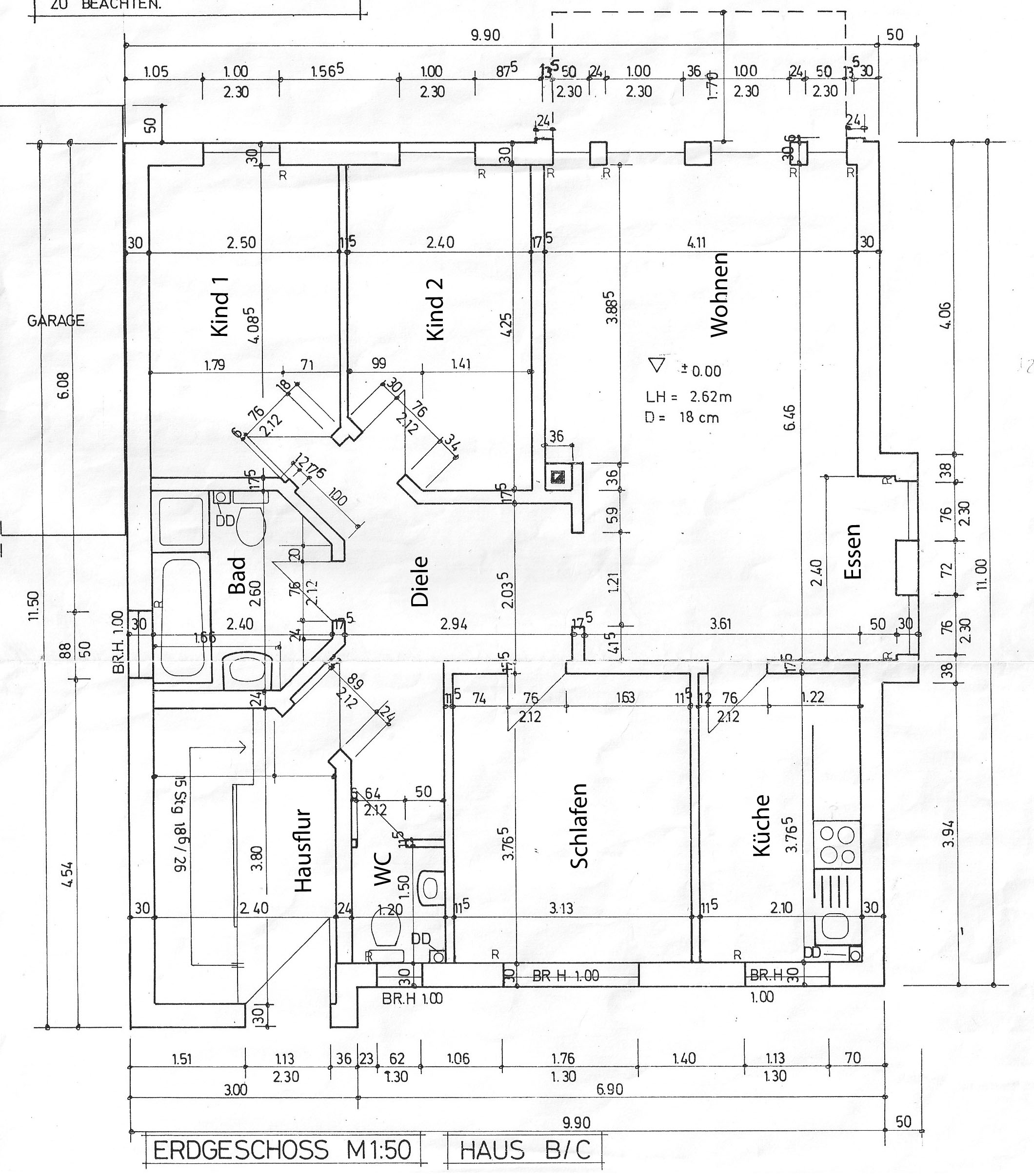
Auf dem Grundriss kann man die Aufteilung der Wohnung und die Maße entnehmen, durch anklicken der Zeichnung kann diese vergrößert werden.

 

Grundriss mit Quadratmeterangaben                        Bauzeichnung mit Maßen     

 

 

 

^